L’informatique est un outil indispensable pour ma profession, elle augmente ma productivité et de plus j’aime ça. J’ai des facilités en informatique, je connais plusieurs langages de programmation et un grand nombre de logiciels :
Le pack office : word, excel, powerpoint, publisher, access et outlook
Autodesk : autocad, autocad mechanical desktop, inventor pro avec ansys, robobat, revit
Adoble : photoshop, illustrator, indesign, acrobat, et un peu dreamweaver
Programmation : vba autocad, vba excel, vba access, et quelques notions en java, php, css
Et une liste d’utilitaires bien trop longue à développer ici…
————————————————————————————————————————————
Je vous présente maintenant mes créations informatiques :

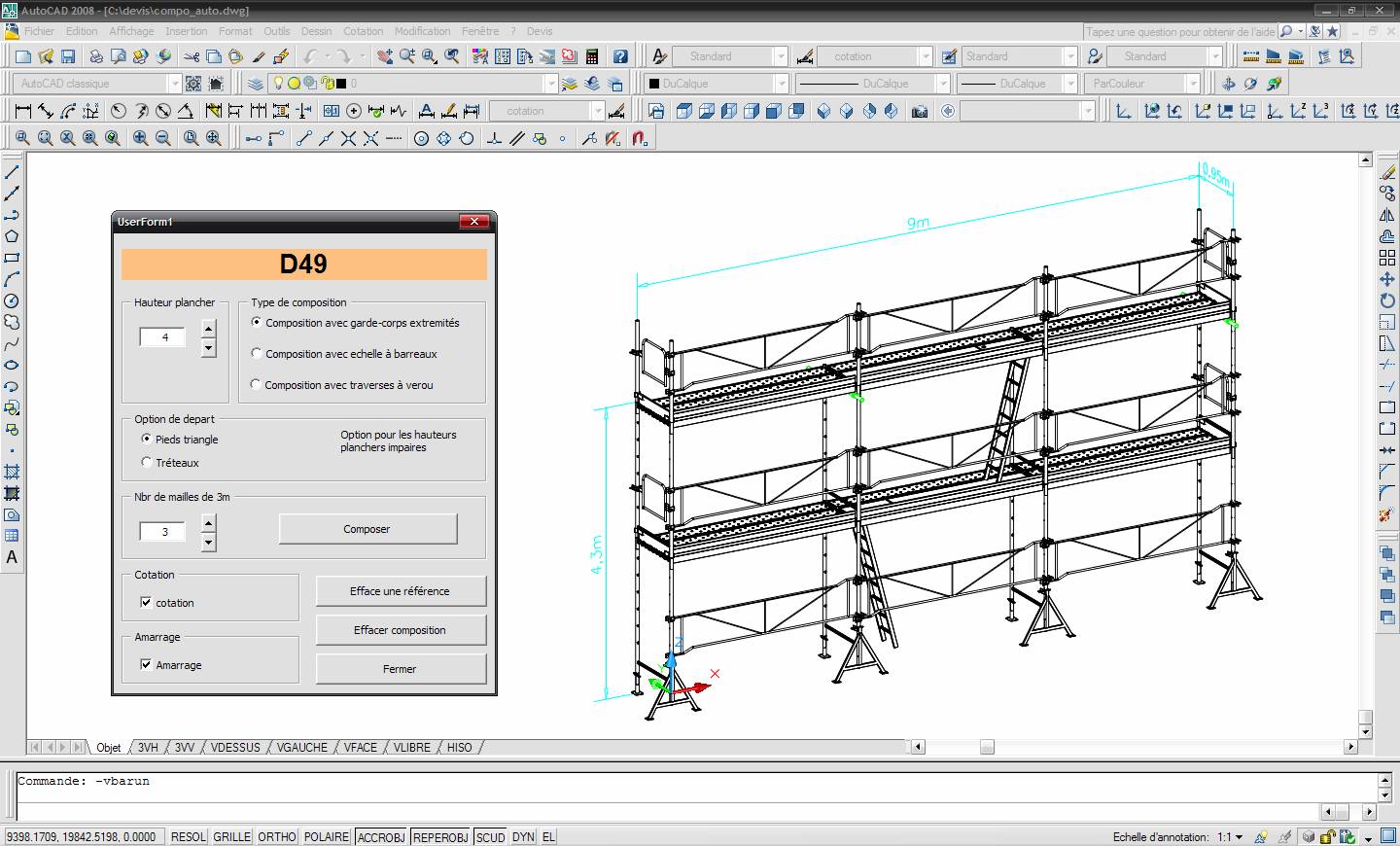
Pour les structures de type échafaudage, j’ai programmé un gros module en VBA sur autocad, qui permet la création de structure échafaudage, la sortie des listes de pièces et les plans de montage en 2d et 3d.
.
.
.
.
Un second programme en vba excel prend la suite pour finaliser le devis et l’offre commerciale complète. Il gère aussi l’archivage, le suivi des commandes et les relances. Cet utilitaire est utilisé quotidiennement par une dizaine de collaborateurs.
.
————————————————————————————————————————————
Là, il s’agit d’un programme sur access pour la gestion des gammes de fabrication, les nomenclatures, les fiches de poste, les fiches de réglages machines, le calcul des coûts de fabrication, et la gestion des chronométrages des temps.
Cet utilitaire est dédié au service méthode. Il permet d’analyser en profondeur la moindre opération de fabrication
.
.
.
.
.
————————————————————————————————————————————
Voici un programme pour gérer toutes les versions possibles d’une gamme de produits pour en calculer le coût de fabrication.
————————————————————————————————————————————
Pour les calculs de structure de charpente métallique, j’ai crée plus d’une cinquantaine d’utilitaires programmés sur excel ( avec un peu de vba). Tous ces outils me permettent de dimensionner chaque élément d’une structure et d’imprimer une note de calculs.
Celui-ci particulièrement important, me permet de gérer les descentes de charges. On peut ainsi calculer les efforts qui seront transmis aux fondations et dimensionner les systèmes d’ancrages.
————————————————————————————————————————————
Voici une application programmée sur Access pour la gestion d’un parc de matériels informatiques. L’interface a été développée avec un designer, et cela se voit, il me semble. Très colorée, cela change de l’ambiance un peu triste des logiciels industriels.
————————————————————————————————————————————
Pour la gestion de production, j’ai mis au point un programme qui permet de calculer la charge de production sur les 4 semaines avenir pour chaque unité de fabrication. Il permet de simuler le taux d’occupation par poste en fonction du nombre d’opérateurs. Il est lui aussi programmé sur Excel.
————————————————————————————————————————————
Pour un domaine très différent, à la demande du président du club de pêche de Pornichet, j’ai programmé un utilitaire pour gérer et archiver des concours de pêches en bateaux.
————————————————————————————————————————————
Toujours sur Access, voici une application programmée pour la gestion du service maintenance, le stockage des moyens de production (dans le cas suivant, ce sont des moules pour l’injection plastique), et plusieurs systèmes de calculs et de statistiques.
————————————————————————————————————————————
























Vos derniers commentaires